Zilverenberg 21

5234 GL ’s-Hertogenbosch
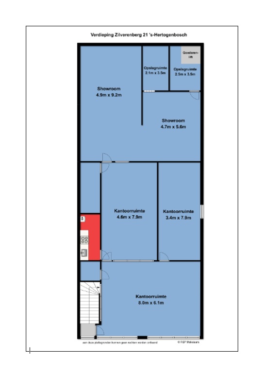
Kantoorruimte | circa 225 ㎡

Verhuurd

Omschrijving

TE HUUR
Circa 225 m² kantoorruimte

Het bedrijfsobject bevindt zich op bedrijventerrein Maaspoort aan de Zilverenberg 21 aan de noordzijde te 's-Hertogenbosch. Bedrijventerrein Maaspoort wordt gekenmerkt door een diversiteit aan regionale en internationale ondernemingen.

In de directe omgeving bevinden zich onder meer LED Flatlight, Bossche Autocentrum Maaspoort, Trendchef, Maus International BV, Omron Manufacturing of the Netherlands BV, Vriesoord BV, DHL, Praxis, enzovoorts.

Kantoorruimte
Het betreft een bedrijfsobject bestaande uit circa 225 m² kantoorruimte gelegen op de eerste verdieping.

Kenmerken kantoorruimte
- Systeemplafond voorzien van LED-verlichting en opbouwspots
- Airco
- Databekabeling
- Laminaatvloer

Parkeren
Er is voldoende parkeergelegenheid op eigen terrein aanwezig.

Bestemming
Het bedrijfsgebouw is volgens opgave van de gemeente 's-Hertogenbosch opgenomen in het bestemmingsplan ‘Bedrijventerrein Treurenburg, Maaspoort, Hambakenwetering, Brabantpoort, De Brand, De Herven'. Dit werd vastgesteld bij Raadsbesluit d.d. 25 juni 2013.
 
Het perceel heeft volgens dit bestemmingsplan de bestemming ‘Bedrijventerrein’ en dubbelbestemming 'Waarde Archeologie -4 met als functieaanduiding 'bedrijf van de categorie 3.2' met als functieaanduiding specifieke vorm van detailhandel abc'.
 
Maximum bebouwingspercentage terrein (%): 70
Maximum bouwhoogte (m): 10

Locatie
Door de ligging op korte afstand van de op- en afritten van de Maasroute (Rijksweg A59) is de bereikbaarheid met het eigen vervoer uitstekend. Rijksweg A59 geeft op korte afstand aansluiting op Rijksweg A2 (Amsterdam-Maastricht). Op korte afstand van het object is een bushalte met een rechtstreekse aansluiting op het centraal NS station van 's-Hertogenbosch.
 

+ Lees volledige omschrijving
Kenmerken
TypeTe huur
Oppervlakte225
Gebouwdetails
Bouwjaar1989
EnergieklasseA
ParkeerfaciliteitenEr is voldoende parkeergelegenheid op eigen terrein aanwezig
Bereikbaarheid snelweg afritOp 1000 m tot 1500 m
Bereikbaarheid NS stationOp 1500 m tot 2000 m
Bereikbaarheid bushalteOp 500 m tot 1000 m
Financieel
TransactiestatusBeschikbaar
Servicekosten€ 225,00 Per maand
Type aanvaardingIn overleg