De Grote Elst 5-7

5246 JM Rosmalen
Kantoorruimte | circa 300 ㎡

Verhuurd

Omschrijving

TE HUUR
Circa 300 m² kantoorruimte op de eerste verdieping

Dit representatieve en moderne kantoorgebouw, gerealiseerd in 2000, is uitstekend gelegen aan De Grote Elst op het hoogwaardige bedrijventerrein Hintham, aan de oostzijde van Den Bosch. Dankzij de prominente ligging aan de rijksweg A2 geniet het object een uitstekende zichtbaarheid en attentiewaarde. Het bedrijventerrein kenmerkt zich door zijn ruime opzet en verzorgde bouwstijl, wat bijdraagt aan een professionele en representatieve werkomgeving.

In de directe omgeving zijn onder meer gevestigd: B&B Design, Cookie Company, Peters Bouw en Onderhoud, Hoedemakers Bouw en Ontwikkeling alsmede diverse kantoorgebruikers.

Kantoorruimte
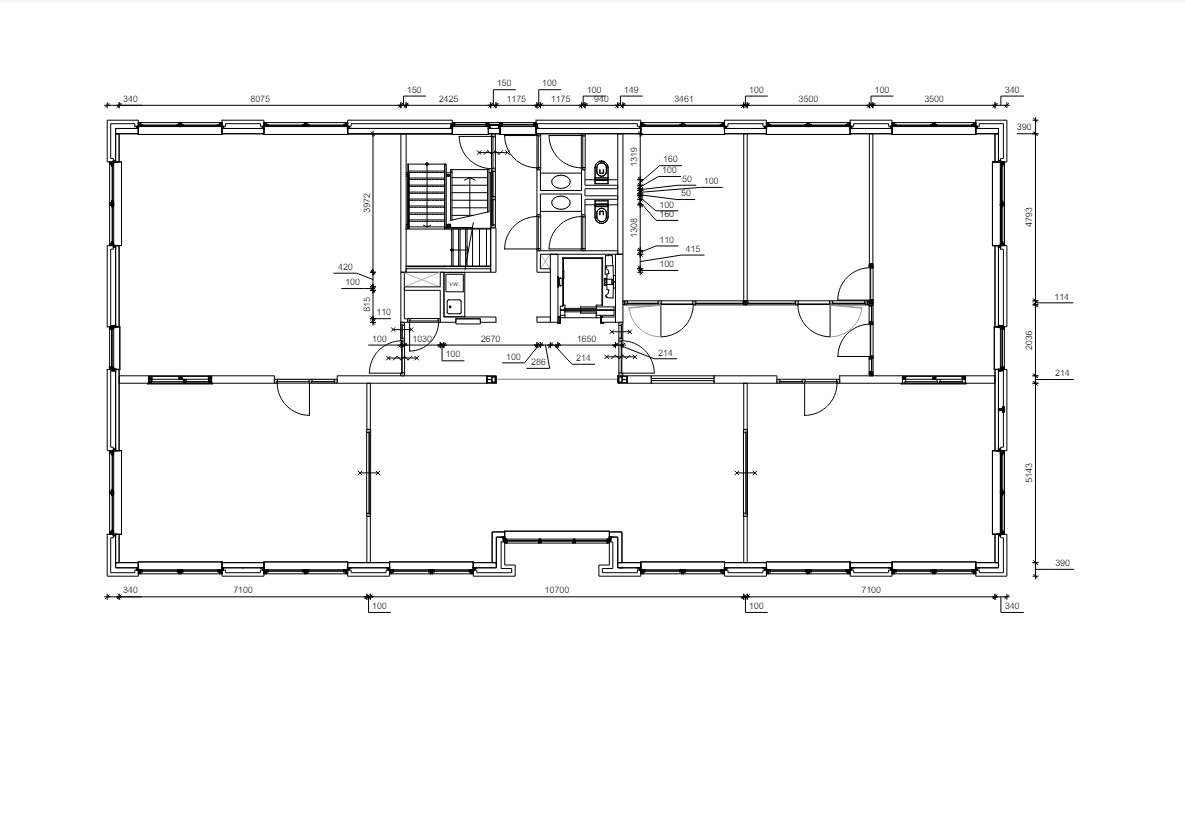
De kantoorruimte bevindt zich op de eerste verdieping en heeft een totale oppervlakte van circa 300 m². De ruimte is verdeeld in diverse grotere en kleinere kamers.

Kenmerken
- Systeemplafonds met moderne LED verlichtingsarmaturen
- Kabelgoten voorzien van databekabeling
- Centrale verwarming middels radiatoren
- Brandblusvoorzieningen aanwezig
- Pantry in de algemene ruimte
- Toiletten met voorportaal
- Lift aanwezig
- Archiefruimte mogelijk op zolder
- 160 zonnepanelen, resulterend in lage energiekosten
- Per verdiepingshelft 1 airco unit in gang extra tbv verwarming en koeling
- Algemene ventilatie middels luchtkanalen tbv verwarming en koelen

Servicekosten
In de servicekosten is het volgende inbegrepen:
- Internetaansluiting excl glasvezel, separaat € 500,00 per kwartaal
- Gemeenschappelijk gebruik van een spreekkamer (reservering via agendasysteem)
- Gemeenschappelijk gebruik van de toiletgroep
- Gemeenschappelijk gebruik van pantry, vaatwasser en koelkast
- Schoonmaak van de gemeenschappelijke ruimten
- Gebruik van de centrale afvalcontainer- Verwarming en koeling van de kantoorruimte
- Levering en verbruik van elektra en water

Bestemming
Het kantoorgebouw is volgens opgave van de gemeente 's-Hertogenbosch opgenomen in het bestemmingsplan ''Hintham''. Onherroepelijk sinds 15 mei 2011.

Het perceel heeft volgens dit bestemmingsplan de bestemming ''kantoor".

Terrein
Op het parkeerterrein zijn nog 10 parkeerplaatsen beschikbaar. De huurprijs bedraagt € 350,00 per parkeerplaats per jaar exclusief BTW.

Locatie
Met de auto is de locatie bijzonder gunstig gelegen: binnen enkele minuten bereikt u de rijkswegen A2 en A59, twee belangrijke verkeersaders die zorgen voor snelle verbindingen richting onder andere ’s-Hertogenbosch, Eindhoven, Utrecht en Nijmegen. Dit maakt de locatie zeer geschikt voor zowel regionale als landelijke bereikbaarheid.

Ook met het openbaar vervoer is de bereikbaarheid goed verzorgd. In de directe omgeving bevinden zich meerdere bushaltes met frequente verbindingen naar omliggende wijken en het centrum van ’s-Hertogenbosch. Daarnaast ligt NS-station ’s-Hertogenbosch Oost op korte afstand, waardoor ook treinreizigers eenvoudig en snel toegang hebben tot de locatie. 

+ Lees volledige omschrijving
Kenmerken
TypeTe huur
Oppervlakte300
Gebouwdetails
Bouwjaar2000
EnergieklasseA +++
ParkeerfaciliteitenOp het parkeerterrein zijn nog 10 parkeerplaatsen beschikbaar. voor de parkeerplaatsen geldt een huurprijs van € 250,00 per parkeerplaats per jaar exclusief btw. uitgangspunt is dat iedere verdieping de mogelijkheid heeft tot het huren van 10 parkeerplaatsen.
Bereikbaarheid snelweg afritOp 500 m tot 1000 m
Bereikbaarheid NS stationOp 2000 m tot 3000 m
Financieel
TransactiestatusBeschikbaar
Servicekosten€ 25,00 Per vierkante meters per jaar
Type aanvaardingIn overleg
De Grote Elst 5-7 Rosmalen
De Grote Elst 5-7 Rosmalen