Weerdskampweg 6 E

5222 BA ’s-Hertogenbosch
Bedrijfsruimte | circa 128 ㎡

€ 1.650,00 per maand

Omschrijving

TE HUUR
Moderne bedrijfsunit van 128 m² verdeeld over twee bouwlagen

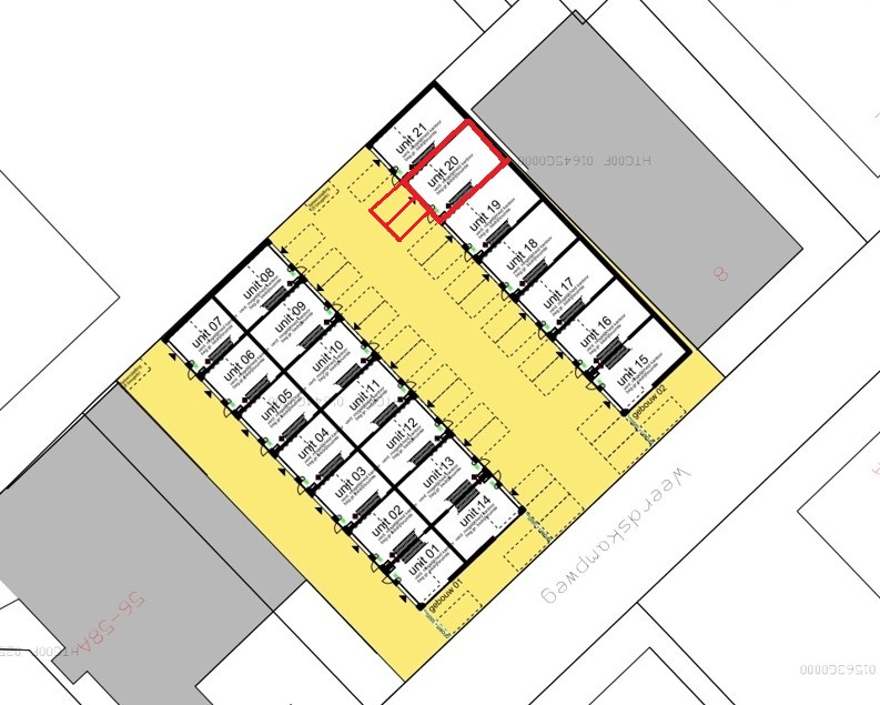
De bedrijfsunit maakt onderdeel uit van het moderne nieuwbouw Businesspark Den Bosch. Aan de Weerdskampweg bevindt zich deze representatieve bedrijfsunit 6E (unit 20) met een hoogwaardige afwerking en een doordachte indeling over twee verdiepingen. De unit is ideaal geschikt voor ondernemers die behoefte hebben aan een functionele bedrijfsruimte met opslag, groothandel of showroommogelijkheden, op een goed bereikbare locatie in ’s-Hertogenbosch. De unit maakt onderdeel uit van een VvE waarbij collectieve afspraken en regels zijn gemaakt of afgesproken.

Bedrijfsunit
De bedrijfsunit bestaat uit circa 64 m² bedrijfsruimte op de begane grond en circa 64 m² bedrijfs-/showroomruimte op de eerste verdieping. De unit wordt hoogwaardig opgeleverd met diverse moderne voorzieningen.

Kenmerken van de bedrijfsunit

Begane grond
- Elektrische overheaddeur
- Verdeelkast en uitgebreide elektrische installatie
- Aansluitmogelijkheid voor laadpaal
- Aansluiting glasvezel (n.n.b. of n.n. definitief ten tijde van opstellen van deze brochure), wel loze leidingen
- Toilet met fonteintje
- Wandcontactdozen in alle hoeken + loze leiding voor data (opbouw)
- Kabelgoot aan plafondzijde
- 6 basisarmaturen voor verlichting
- Airconditioning (verwarmen én koelen)
- Vluchtwegaanduiding en brandblusser

Eerste verdieping
- Pantry met boiler
- Wandcontactdozen in alle hoeken + loze leiding data (inbouw)
- Gestuukte muren aan lange zijde en voorzijde kopse kant
- Betonlook plafond en kopse wand (industrieel karakter)
- Kabelgoot t.b.v. verlichting
- Vluchtwegaanduiding en brandblusser
- 1 te openen raam
- Cementdekvloer (leidingen netjes weggewerkt)

Buitenterrein / parkeren
Het buitenterrein is mandelig en wordt door collectief (via VvE) onderhouden. Voor de deur is ruime parkeergelegenheid aanwezig — 2 vaste parkeerplaatsen behoren exclusief tot deze bedrijfsunit.

Bestemming
De bedrijfsunit is volgens opgave van de gemeente 's-Hertogenbosch opgenomen in het bestemmingsplan ‘Bedrijventerrein De Rietvelden, De Vutter, Het Ertveld'. Dit werd vastgesteld bij Raadsbesluit d.d. 03 juni 2013.
 
Het perceel heeft volgens dit bestemmingsplan de enkelbestemming ‘Bedrijventerrein’ met als functieaanduiding 'bedrijf tot en met categorie 4.1'.

Ligging
Businesspark Den Bosch is gunstig gelegen aan de noordzijde van ’s-Hertogenbosch, nabij de uitvalswegen A2 (Amsterdam – Maastricht) en A59 (Oss – Waalwijk). Hierdoor is het terrein uitstekend bereikbaar met de auto vanuit alle windrichtingen.
Ook het centrum van ’s-Hertogenbosch bevindt zich op slechts enkele minuten rijden.

+ Lees volledige omschrijving
Kenmerken
TypeTe huur
Oppervlakte128
Gebouwdetails
Bouwjaar2025
ParkeerfaciliteitenTwee exclusieve parkeerplaatsen
Bereikbaarheid snelweg afritOp 500 m tot 1000 m
Bereikbaarheid NS stationOp 5000 m of meer
Bereikbaarheid bushalteOp minder dan 500 m
Financieel
TransactiestatusBeschikbaar
Type aanvaardingIn overleg