Rietveldenweg 9

5222 AP ’s-Hertogenbosch
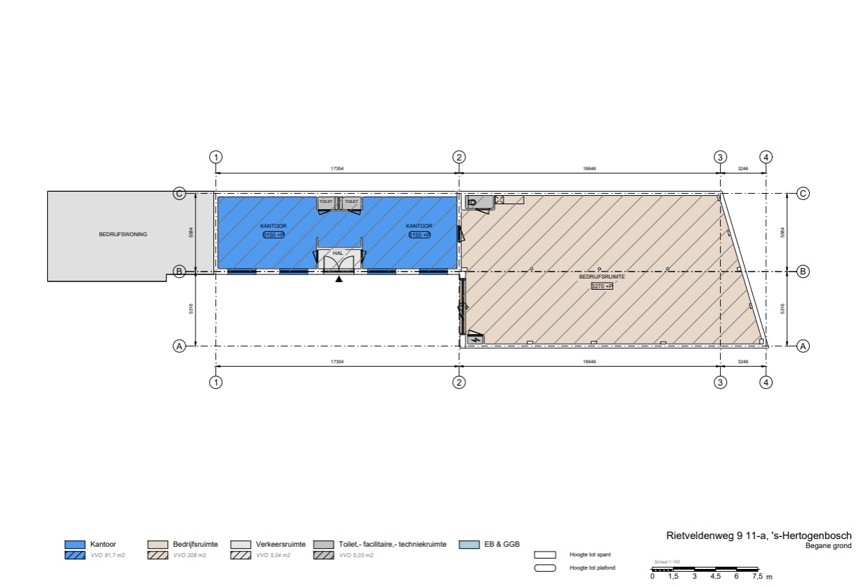
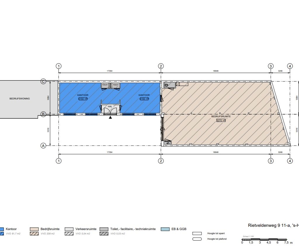
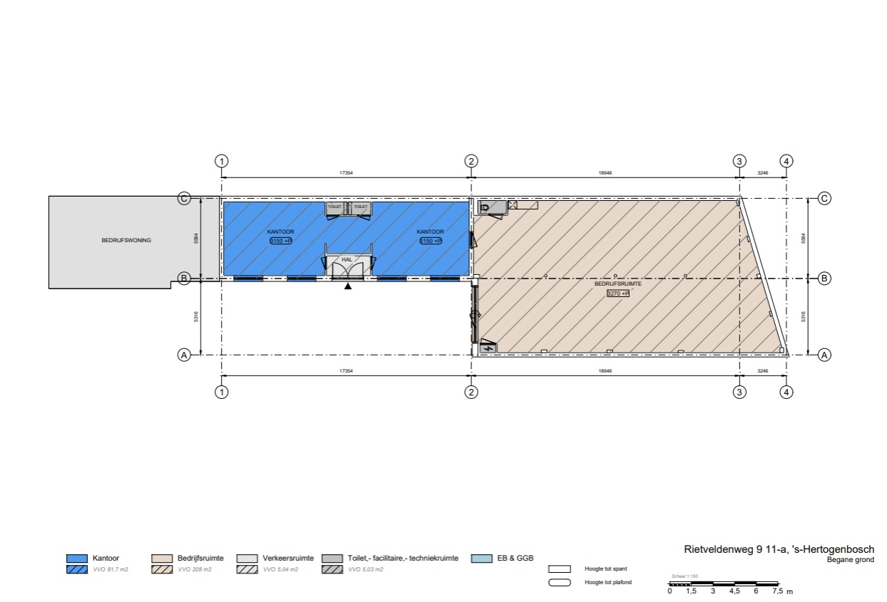
Bedrijfsruimte | circa 208 ㎡
Kantoorruimte | circa 82 ㎡

€ 995.000,00 k.k.

Omschrijving

TE KOOP
Woning met bedrijfs-/kantoorruimte

Stel u voor: Een bedrijfspand dat de perfecte balans biedt tussen ruimte, functionaliteit en modern comfort. Welkom bij Rietveldenweg 9-11a, gelegen op bedrijventerrein De Rietvelden te 's-Hertogenbosch.

Dit indrukwekkende pand omvat een ruime bedrijfsruimte van circa 208 m², een eigentijdse kantoorruimte van circa 82 m² en een comfortabele bedrijfswoning van circa 96 m², allemaal op één strategische locatie.

De Voordelen van Rietveldenweg 9-11a:
1. Ideale ligging: Dit pand is strategisch gelegen, op slechts een steenworp afstand van zowel de snelweg als het
treinstation. Dit maakt het de perfecte uitvalsbasis voor zakelijke activiteiten, met uitstekende bereikbaarheid voor
zowel medewerkers als klanten.
2. Zeer geschikt voor MKB ondernemers: Met ruim 300 m² aan bedrijfs- en kantoorruimte, biedt dit pand voldoende
ruimte om uw bedrijf te laten groeien en floreren. De bedrijfsruimte is ideaal voor opslag, productie of logistiek,
terwijl de kantoorruimte een moderne en professionele omgeving biedt voor uw team.
3. Gemoderniseerde kantoren: Het kantoorruimte is onlangs verbouwd en gemoderniseerd, waardoor een eigentijdse
werkomgeving is gecreëerd. Dit stimuleert creativiteit en efficiëntie binnen uw bedrijf.
4. Comfortabele bedrijfswoning: Het is niet alleen een plek om te werken, maar ook om te leven. De bedrijfswoning van
circa 96 m² biedt alle comfort en gemakken die u nodig heeft om een goede balans tussen werk en privé te
behouden.

Object
Onderhavige woning en bedrijfs-/kantoorruimte zijn gelegen op een, volledig verhard, perceel van 578 m². De vrijstaande woning kent de navolgende functionele indeling, entree, woonkamer, keuken, en toilet. De eerste verdieping bestaat uit een drietal slaapkamers, badkamer en bergruimte.

De bedrijfsruimte ter grootte van 208 m² heeft een functionele indeling en is voorzien van een betonvloer, één elektrisch bedienbare overheaddeur, krachtstroom en TL-opbouwarmaturen. Tussen de woning en de bedrijfsruimte is circa 82 m² kantoorruimte gerealiseerd.

Parkeren
Op eigen terrein is parkeergelegenheid aanwezig, daarnaast kan er ook in de directe omgeving van het object worden geparkeerd.

Bestemming
De woning met bedrijfs-/kantoorruimte is naar opgave van de gemeente ’s-Hertogenbosch gelegen binnen het thans vigerende bestemmingsplan Bedrijventerrein De Rietvelden, De Vutter, Het Ertveld en heeft hierin de bestemming Bedrijventerrein en is als zodanig bestemd voor ondernemingen in de categorieën 1 tot en met 3.2 van de bij het bestemmingsplan behorende staat van bedrijfsactiviteiten en heeft tevens de functieaanduiding bedrijfswoning. Nadere informatie over het bestemmingsplan is op aanvraag beschikbaar.

Locatie
De woning met bedrijfsruimte is gelegen op bedrijventerrein de Rietvelden, nabij het centrum van ‘s-Hertogenbosch. De Rietvelden is het grootste bedrijventerrein van Den Bosch en huisvest een variëteit aan ondernemingen.

De Rietveldenweg is dé verkeersader en de directe ligging aan deze weg zorgt dan ook voor veel exposure. Door de directe aansluiting aan de oprit van de A59, en met de A2 op enkele minuten afstand, kan de bereikbaarheid met de auto als uitstekend worden beschouwd. De bereikbaarheid per openbaar vervoer is, met diverse bushaltes in de directe omgeving, eveneens uitstekend. Het Centraal Station is op circa 1,5 km afstand gelegen.

+ Lees volledige omschrijving
Kenmerken
TypeTe koop
Oppervlakte208
Gebouwdetails
Bouwjaar1957
EnergieklasseF
ParkeerfaciliteitenEr is parkeergelegenheid op eigen terrein en langs openbare weg
Bereikbaarheid snelweg afritOp 1500 m tot 2000 m
Bereikbaarheid NS stationOp 1500 m tot 2000 m
Financieel
TransactiestatusBeschikbaar
Type aanvaardingIn overleg
Rietveldenweg 9 ‘s-hertogenbosch
Rietveldenweg 9 ‘s-hertogenbosch