Hinthamerstraat 224
5211 MX
’s-Hertogenbosch
Winkelruimte | circa 87 ㎡
€ 21.500,00 per jaarOmschrijving
TE HUUR
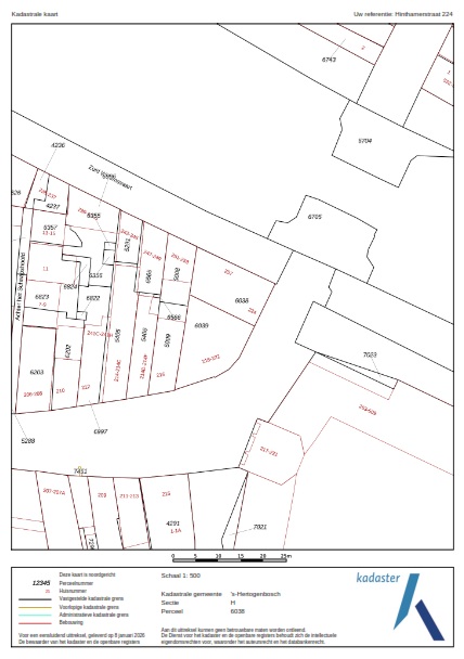
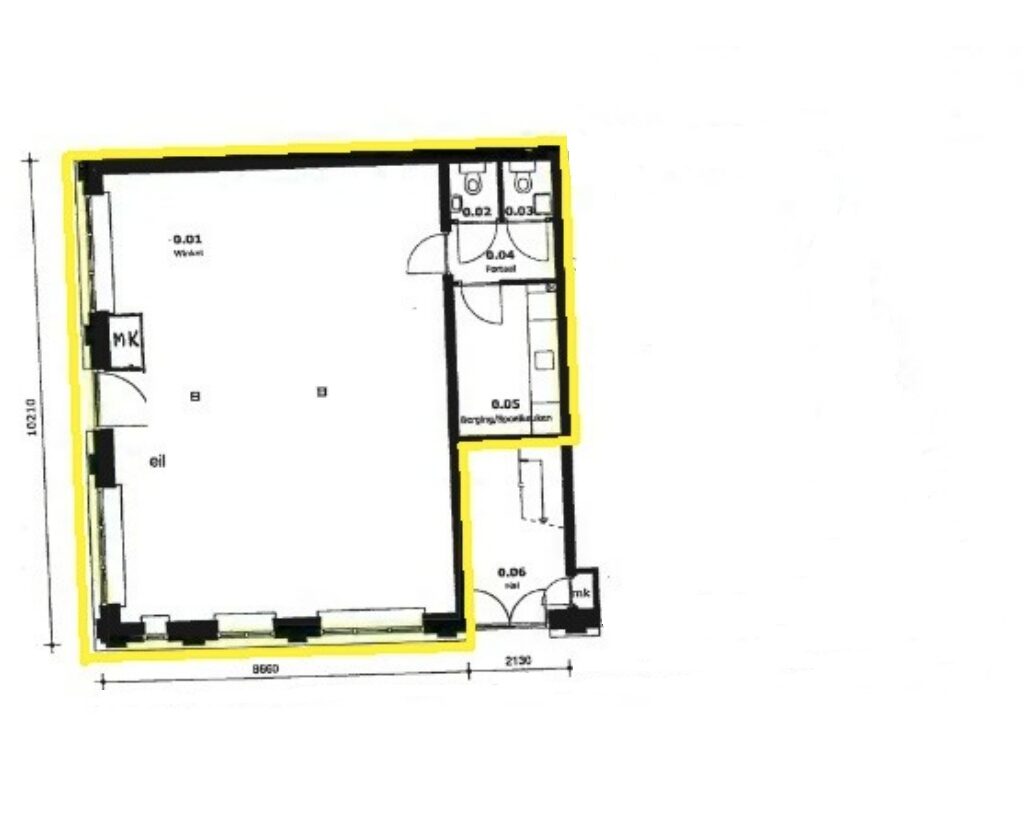
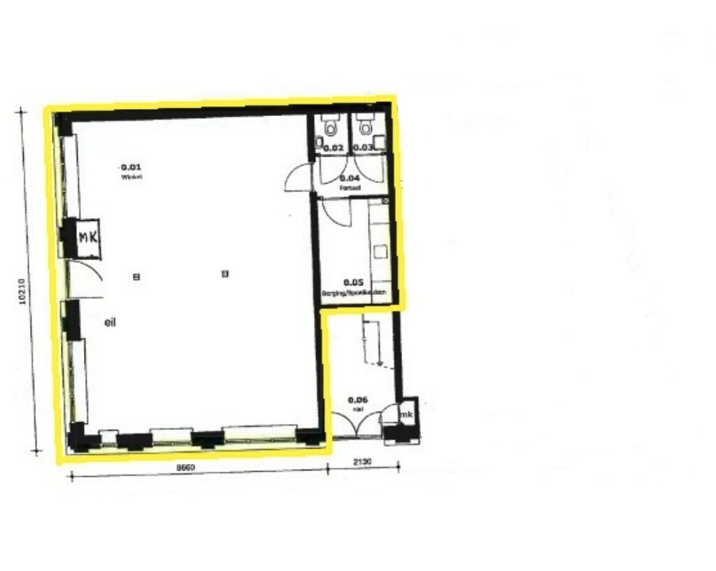
Circa 87 m² commerciële ruimte
Het object is gelegen aan de Hinthamerstraat 224, op een uitstekende zichtlocatie aan de aanlooproute naar het historische stadscentrum en kent een continue stroom van voetgangers, fietsers en lokaal verkeer.
In de directe omgeving bevinden zich diverse speciaalzaken waaronder Choco Loca, Optiek Vogel, Multivlaai Den Bosch, horeca, culturele voorzieningen en parkeergelegenheden.
| Kenmerken | |
|---|---|
| Type | Te huur |
| Oppervlakte | 87 ㎡ |
| Gebouwdetails | |
|---|---|
| Bouwjaar | 1890 |
| Parkeerfaciliteiten | Parkeren in de directe omgeving is mogelijk tegen betaling. tevens zijn parkeergarage sint josephstraat en parkeergarage sint jan op loopafstand van het object gelegen. ook is er een mogelijkheid tot het aanvragen van een parkeervergunning. |
| Bereikbaarheid snelweg afrit | Op 2000 m tot 3000 m |
| Bereikbaarheid NS station | Op 1500 m tot 2000 m |
| Bereikbaarheid bushalte | Op minder dan 500 m |
| Financieel | |
|---|---|
| Transactiestatus | Beschikbaar |
| Type aanvaarding | In overleg |
Andere panden met vergelijkbare kenmerken
Te huur
Kempenlandstraat 13 C
5262 GK Vught
Bedrijfsruimte | circa 483 ㎡
Kantoorruimte | circa 200 ㎡
€ 55.000,00 per jaar
Te huur
Hedikhuizerweg 15 A 11
5222 BC ’s-Hertogenbosch
Bedrijfsruimte | circa 118 ㎡
€ 21.000,00 per jaar
Te huur
De Grote Elst 5-7
5246 JM Rosmalen
Kantoorruimte | circa 300 ㎡
€ 135,00 per ㎡ per jaarVraag de brochure aan voor dit object
Na het invullen van het formulier zal de download van de brochure direct starten.
Plan een bezichtiging voor dit object
Na het invullen van het formulier nemen wij zo snel mogelijk contact op.