Schotsbossenstraat 8

4705 AG Roosendaal
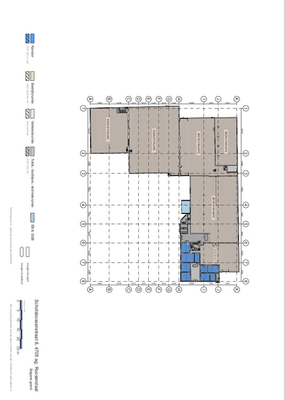
Bedrijfsruimte | circa 4.159 ㎡
Kantoorruimte | circa 548 ㎡

€ 250.000,00 per jaar
€ 3.250.000,00 k.k.

Omschrijving

TE KOOP/TE HUUR
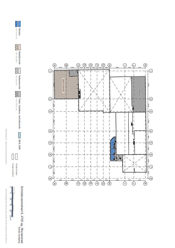
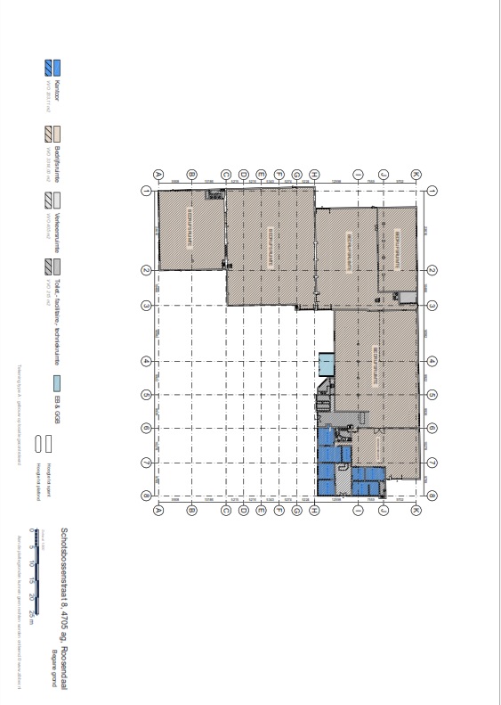
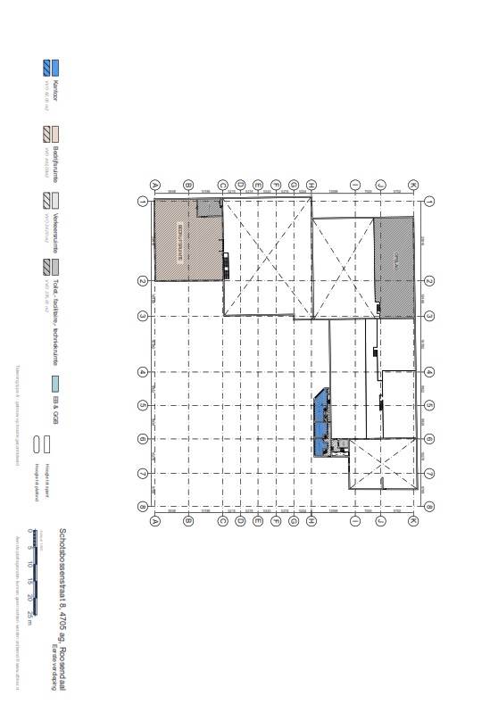
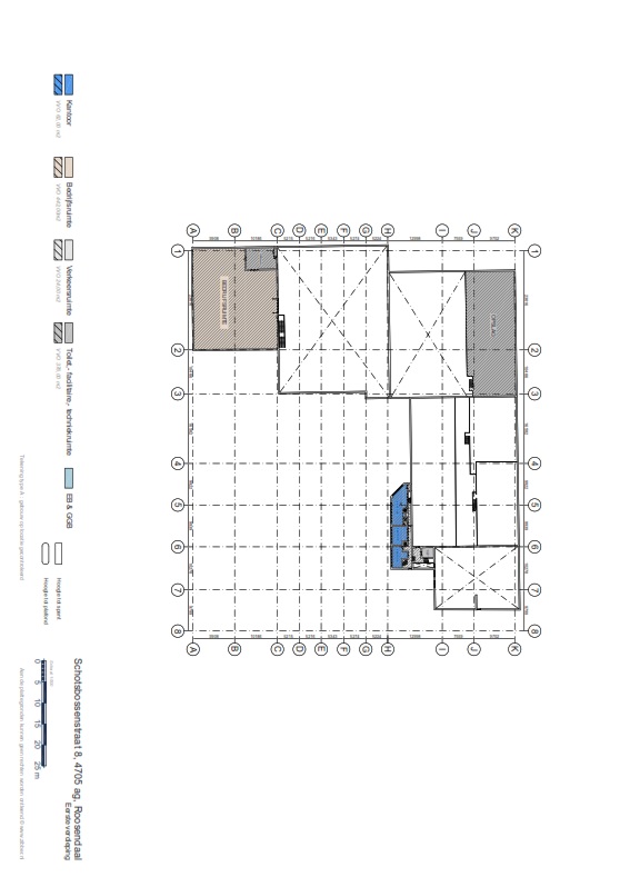
Circa 3.341 m² bedrijfsruimte
Circa 818 m² entresol
Circa 548 m²kantoorruimte

Het te koop en te huur aangeboden object is gelegen aan de Schotsbossenstraat 8 op bedrijventerrein Majoppeveld-Noord te Roosendaal. Dit bedrijventerrein staat bekend om haar uitstekende bereikbaarheid. De op- en afritten van de A58 (Bergen op Zoom – Eindhoven) bevinden zich namelijk op korte afstand. Via de A58 zijn onder andere de Rijkswegen A4, A17 en de A16 zeer snel te bereiken.

Bedrijfsruimte
De bedrijfsruimte heeft een totale oppervlakte van circa 4.159 m² waarvan circa 3.341 m² gelegen op de begane grond en circa 818 m² gelegen op een betonnen entresol. De bedrijfsruimte wordt door middel van branddeuren verdeeld in vier compartimenten.

Kenmerken bedrijfsruimte
- 3 overheaddeuren waarvan 1 met separate loopdeur
- Betonvloer
- Branddeur
- Vrije hoogte variewrend van 5 tot circa 9,5 meter.
- Douche
- Was- en kleedgelegenheid
- Kantine met bar
- Kantine met keuken voorzien van inbouwapparatuur
- Pantry
- Toiletgroep, invalidentoilet en urinoirs
- Brandblusvoorzieningen

Kantoorruimte
De kantoorruimte heeft een oppervlakte van circa 548 m² waarvan circa 378 m² gelegen is op de begane grond en circa 86 m² op de eerste verdieping en circa 83,4 m² op de tweede verdieping.

Kenmerken kantoorruimte
- Systeemplafond voorzien van inbouwspots en LED en TL verlichting
- Verwarming middels radiatoren
- Deels voorzien van vloerbedekking en deels voorzien van PVC vloer
- Airco
- Databekabeling
- Toilet
- Brandblusvoorzieningen

Parkeren
Het terrein is afsluitbaar middels een elektrisch hekwerk en voorzien van klinkerbestrating. Er is voldoende parkeergelegenheid op eigen terrein beschikbaar.

Bestemming
Het bedrijfsgebouw is volgens opgave van de gemeente Roosendaal opgenomen in het bestemmingsplan ‘Majoppeveld'. Dit werd vastgesteld bij Raadsbesluit d.d. 27 februari 2018.

Het perceel heeft volgens dit bestemmingsplan de bestemming ‘Bedrijventerrein -4’ met als functieaanduiding 'bedrijf van categorie 2' met als functieaanduiding 'Kantoor'.
 
Maximum bouwhoogte (m): 20

Locatie
Door de ligging langs de A17 en A58 en tussen de havens Rotterdam, Antwerpen en Terneuzen/Vlissingen profiteert Roosendaal van de transport- & logistieksector.
 

+ Lees volledige omschrijving
Kenmerken
TypeHuur of koop
Oppervlakte4.159
Gebouwdetails
Bouwjaar1987
ParkeerfaciliteitenHet terrein is afsluitbaar middels een elektrisch hekwerk en voorzien van klinkerbestrating. er is voldoende parkeergelegenheid op eigen terrein beschikbaar.
Bereikbaarheid snelweg afritOp 2000 m tot 3000 m
Bereikbaarheid NS stationOp 2000 m tot 3000 m
Bereikbaarheid bushalteOp minder dan 500 m
Financieel
TransactiestatusBeschikbaar
Type aanvaardingIn overleg
Schotsbossenstraat 8 Roosendaal
Schotsbossenstraat 8 Roosendaal
Schotsbossenstraat 8 Roosendaal
Schotsbossenstraat 8 Roosendaal