Leeuwenhoeckweg 3

5466 AL Veghel
Bedrijfsruimte | circa 3.825 ㎡
Kantoorruimte | circa 625 ㎡
Buitenterrein | circa 2.800 ㎡

Verkocht

Omschrijving

VERKOCHT
Circa 3.825 m² bedrijfsruimte
Circa 625 m² kantoorruimte
Circa 2.800 m² buitenterrein

Het bedrijfsobject is gelegen op bedrijventerrein De Dubbelen, ten westen van het centrum van Veghel en op steenworp afstand van de containerterminal van Veghel.

De directe omgeving wordt gekenmerkt door een concentratie van voornamelijk groothandels-, ambachts- en industriële bedrijven en bevinden zich o.a. Kuijpers Transport V.O.F., Ketelaars Reklame, Van Hooft Bedrijfswagen Veghel en Boley Exclusieve Openhaarden, Sligro Veghel en Kuehne + Nagel.

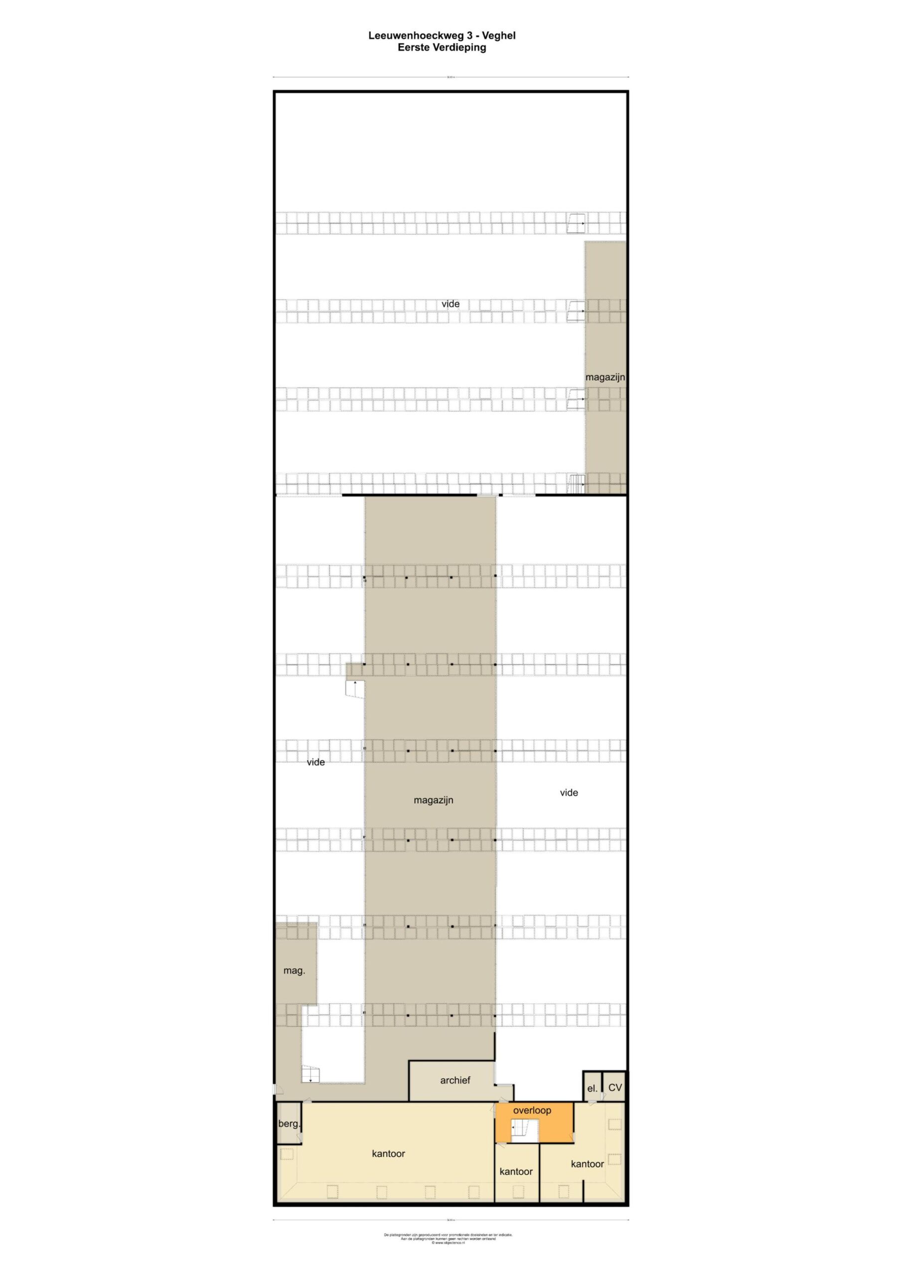
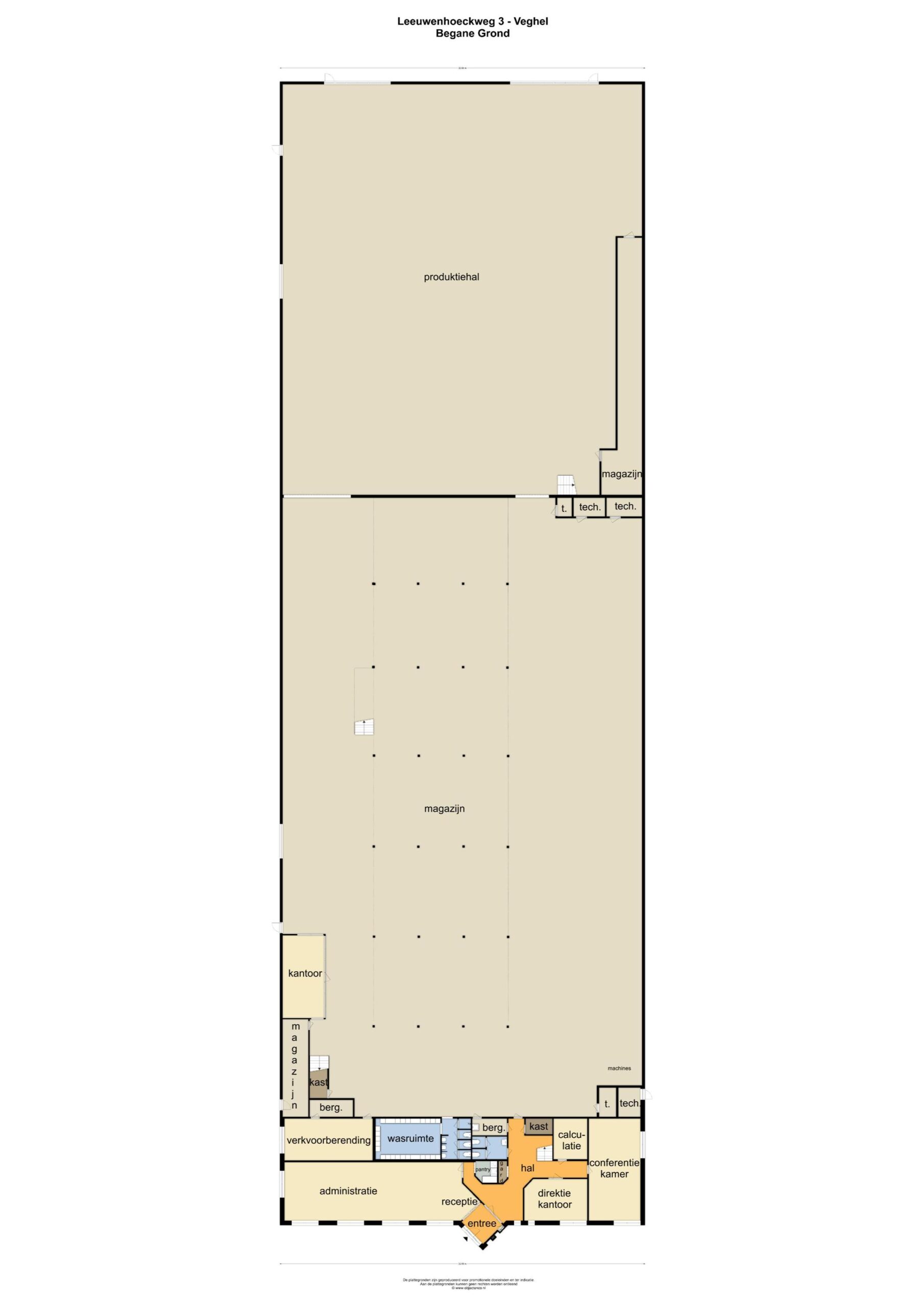
Bedrijfsruimte
De bedrijfsruimte heeft een oppervlakte van circa 3.825 m² waarvan circa 2.980 m² gelegen op de begane grond en circa 845 m² op de eerste verdieping.

Kenmerken bedrijfsruimte
- Betonvloer
- Lichtstraten
- TL-verlichtingsarmaturen
- Heater
- Elektrische overheaddeuren
- Vrije hoogte van circa 6 meter
- Aparte dames- en heren toiletgroepen voorzien van wasgelegenheid
- Afzuigsysteem
- Brandblusvoorzieningen

Kantoorruimte
De kantoorruimte heeft een oppervlakte van circa 625 m² waarvan circa 325 m² gelegen op de begane grond en circa 300 m² op de eerste verdieping.

Kenmerken kantoorruimte
- Separate entree
- Airco
- Vloerbedekking
- Systeemplafonds voorzien van TL-verlichtingsarmaturen en inbouwspots
- Verwarming middels radiatoren
- Kabelgoten
- Alarminstallatie
- Pantry
- Separate dames- en herentoilet

Terrein
Het terrein is deels verhard met klinkers en tevens voorzien van groenvoorziening. Aan de voorzijde van het object is voldoende parkeergelegenheid. Via de poort is de bedrijfsruimte aan de achterzijde bereikbaar.

Bestemming
Het bedrijfsgebouw is volgens opgave van de gemeente Meijerijstad opgenomen in het bestemmingsplan ‘De Dubbelen'. Dit werd vastgesteld bij Raadsbesluit d.d. 6 april 2017.
 
Het perceel heeft volgens dit bestemmingsplan de bestemming ‘Bedrijventerrein’.

Locatie
De Dubbelen ligt vrijwel direct aan de A50 en ontsluiting naar 's-Hertogenbosch en Helmond. De N279 is dichtbij gelegen waardoor de bereikbaarheid vanuit Eindhoven, Nijmegen en 's-Hertogenbosch uitstekend te noemen is.

De Leeuwenhoeckweg betreft het verlengde van de Kennedylaan welke als hoofdontsluiting dient van het bedrijventerrein en een aansluiting geeft op de Corridor en de Rembrandtlaan vanwaar het centrum van Veghel goed te bereiken is.
 

+ Lees volledige omschrijving
Kenmerken
TypeTe koop
Oppervlakte3.825
Gebouwdetails
Bouwjaar1987
EnergieklasseB
ParkeerfaciliteitenEr is voldoende parkeergelegenheid op eigen terrein aanwezig
Bereikbaarheid snelweg afritOp minder dan 500 m
Bereikbaarheid bushalteOp 3000 m tot 4000 m
Financieel
TransactiestatusVerkocht
Type aanvaardingIn overleg
Leeuwenhoeckweg 3 Veghel
Leeuwenhoeckweg 3 Veghel
Leeuwenhoeckweg 3 Veghel